Sign up for newsletter

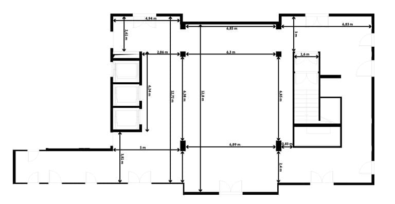
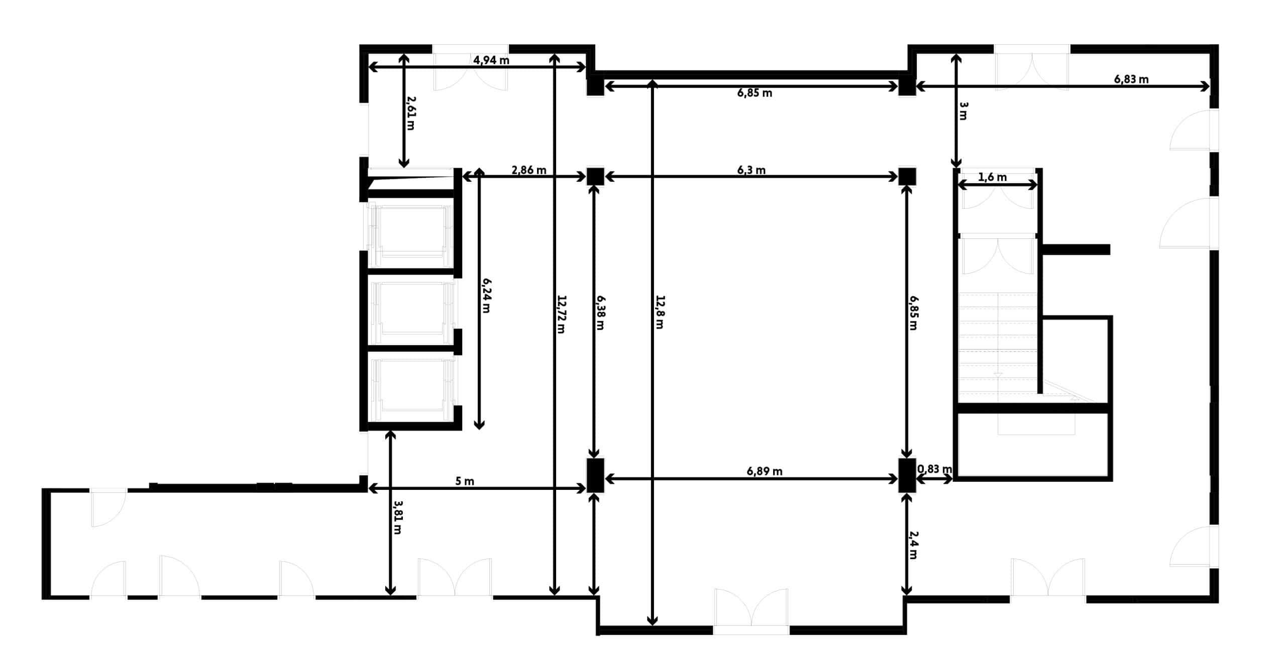
Exhibition area
Exhibition area

The 200 m2 Foyer exhibition area is perfect for professional forums, customer meetings, trade shows, partner meetings, client meetings, receptions, business meetings and protocol events, workshops, press conferences, product launches.

  • PRICE CALCULATION
    & BOOKING

    Calculate and book your holiday online, with immediate confirmation, easily, in just a few steps
    in 2 minutes!

    Request our offer in just a few moments! We will send you our personalized price offer within 24 hours at the latest!

  • Pályázat